POP+

  • Fotos (4)
  • Plantas (3)
  • Mapa
  • Cotação

POP+

Vila Madalena, São Paulo - SP

Tipo
Escritório
Finalidade
Locação
Área
Área

330m²

Sobre o Imóvel

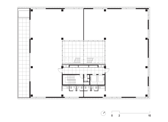
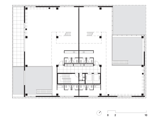
O POP+ é um edifício corporativo Classe B, localizado na Rua Girassol, 285, na região de Pinheiros / Vila Madalena, um dos bairros mais dinâmicos e criativos de São Paulo. O empreendimento se destaca pela localização estratégica, ambiente urbano moderno e excelente mobilidade, sendo ideal para empresas que buscam escritórios funcionais em uma região com forte vocação para inovação, tecnologia e economia criativa.

Características e Diferenciais:

O POP+ apresenta estrutura corporativa versátil, com espaços eficientes e adaptáveis:

  • Áreas disponíveis de 329,80 a 700,01m²
  • Edifício corporativo Classe B
  • Conjuntos comerciais com plantas bem distribuídas
  • Layout flexível (open space ou salas privativas)
  • Infraestrutura para ar-condicionado
  • Elevadores sociais
  • Portaria com controle de acesso
  • Sistema de segurança e monitoramento
  • Estacionamento (conforme disponibilidade)
  • Ambiente corporativo moderno e descolado

Localização: 

Localizado na Rua Girassol, o edifício está em uma das regiões mais vibrantes da cidade.

  • Próximo às avenidas Faria Lima, Rebouças e Heitor Penteado
  • Fácil acesso à Marginal Pinheiros
  • Próximo às estações de metrô Vila Madalena (Linha Verde) e Fradique Coutinho 
  • Região com forte presença de empresas criativas e startups
  • Ampla oferta de restaurantes, cafés e serviços
  • Ambiente urbano moderno e dinâmico

Condições Comerciais:

Sob consulta

Para mais detalhes ou agendamento de visita, entre em contato com a nossa equipe.

Tenho interesse neste imóvel

Informações de contato

OUTROS IMÓVEIS

Confira outros imóveis semelhantes a esse:

E-Business Park 19
E-Business Park 19
Lapa De Baixo, São Paulo - SP Ver mais
Comercial
Comercial
Vila Clementino, São Paulo - SP Ver mais
R$ 8.000.000,00
Arquipeo
Arquipeo
Vila Leopoldina , São Paulo - SP Ver mais
Olivia Fernandes
Olivia Fernandes
Faria Lima, São Paulo - SP Ver mais
Romeu
Romeu
Chácara Santo Antônio , São Paulo - S... Ver mais
Sede Administrativa da Honda
Sede Administrativa da Honda
Vila Gertrudes, São Paulo - SP Ver mais
Birmann 10
Birmann 10
Chácara Santo Antônio , São Paulo - S... Ver mais
Grande Ufficiale Evaristo Comolatti
Grande Ufficiale Evaristo Comolatti
Bela Vista, São Paulo - SP Ver mais
Palmares - Paulista
Palmares - Paulista
Paulista, São Paulo - SP Ver mais
Icon Berrini
Icon Berrini
Berrini, São Paulo - SP Ver mais

Receba nossos artigos!

Preencha os dados abaixo para receber nossos últimos artigos em seu E-mail

Preencha os dados abaixo para entrar em contato, responderemos o mais breve possível.

Whatsapp:
(11) 9 8468-9907
E-mail:
comercial@differa.com.br