Zabo FL Corporate

  • Fotos (23)
  • Plantas (3)
  • Mapa
  • Cotação

Zabo FL Corporate

Faria Lima, São Paulo - SP

Tipo
Escritório
Finalidade
Locação
Área
Área

671m²

Sobre o Imóvel

Zabo Faria Lima Corporate é um edifício corporativo localizado em um dos endereços mais valorizados e estratégicos de São Paulo, no eixo da Avenida Brigadeiro Faria Lima, principal polo financeiro e empresarial do país. O empreendimento se destaca pela arquitetura contemporânea, padrão construtivo elevado e infraestrutura adequada para empresas que buscam posicionamento institucional e eficiência operacional. 

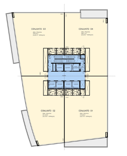
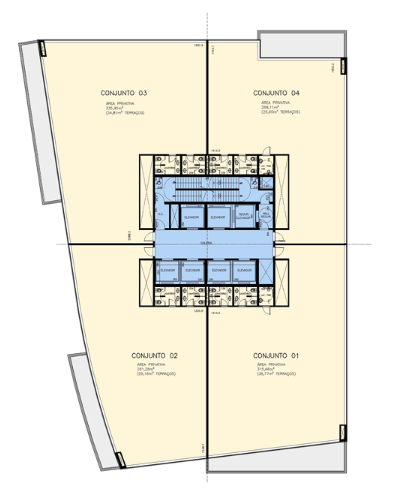
A eficiência das plantas permite layouts flexíveis, com possibilidade de ambientes open space, salas de reunião, áreas colaborativas e espaços executivos.

Características e Diferenciais:

  • Área locável: conjuntos partir de 671 m²
  • 16 vagas de garagem
  • Total de andares: 12 pavimentos
  • 424 vagas de estacionamento, média de 35 por andar
  • 6 elevadores sociais e 3 elevadores de carga
  • Infraestrutura: piso elevado, forro modular, ar-condicionado central
  • Sustentabilidade: certificado Green Building LEED GOLD
  • Comodidades: bicicletário com vestiário, geradores para áreas comuns


Localização:

Zabo FL Corporate Localizado na Avenida Brigadeiro Faria Lima, 4509, um dos principais polos comerciais e financeiros de São Paulo, uma das áreas mais desejadas por empresas nacionais e multinacionais em São Paulo. O edifício oferece fácil acesso a importantes vias como a Avenida Brigadeiro Faria Lima, Marginal Pinheiros, Avenida Rebouças e está próximo a estações de metrô, corredores de ônibus, ciclovias e uma ampla variedade de serviços, como restaurantes, bancos, hotéis e centros comerciais. Sua localização estratégica conecta sua empresa aos principais pontos da cidade com comodidade e agilidade, além de proporcionar alta visibilidade corporativa.

Condições Comerciais:  

  • Aluguel: R$280/m²
  • Condomínio: R$30,11/m²
  • IPTU: R$27,53m²
  • Valor do Pacote: R$ 226.556 (Mobiliado)
  • Ja com Layout pronto para ocupação

Os valores de condomínio e IPTU estão sujeitos a alterações sem aviso prévio. Recomendamos a confirmação das informações no momento do interesse ou da locação. Para mais detalhes ou agendamento de visita, entre em contato com nossa equipe.

Tenho interesse neste imóvel

Informações de contato

OUTROS IMÓVEIS

Confira outros imóveis semelhantes a esse:

Monousuário Manoel Dutra
Monousuário Manoel Dutra
Bela Vista, São Paulo - SP Ver mais
Monousuário Gabriel 1825
Monousuário Gabriel 1825
Jardim América, São Paulo - SP Ver mais
Bela Santos
Bela Santos
Paulista, São Paulo - SP Ver mais
Birmann 20
Birmann 20
Chácara Santo Antônio , São Paulo - S... Ver mais
Fernando De Albuquerque
Fernando De Albuquerque
Consolação, São Paulo - SP Ver mais
Suarez Trade - SP
Suarez Trade - SP
Paulista, São Paulo - SP Ver mais
Roberto Bratke
Roberto Bratke
Pinheiros, São Paulo - SP Ver mais
Brigadeiro 3595
Brigadeiro 3595
Paulista, São Paulo - SP Ver mais
WT Morumbi - Ala A
WT Morumbi - Ala A
Chucri Zaidan, São Paulo - SP Ver mais
Monções da Gastão
Monções da Gastão
Vila Leopoldina , São Paulo - SP Ver mais

Receba nossos artigos!

Preencha os dados abaixo para receber nossos últimos artigos em seu E-mail

Preencha os dados abaixo para entrar em contato, responderemos o mais breve possível.

Whatsapp:
(11) 9 8468-9907
E-mail:
comercial@differa.com.br